Sadská RD s 3bj

Prostorova studie.jpg Připravujeme

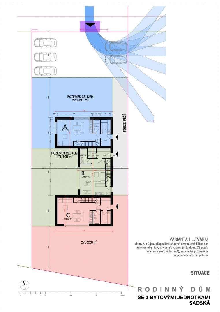
V městě Sadská připravujeme projekt rodinného domu s třemi bytovými jednotkami

V nově vznikající lokalitě přímo v centru Sadské připravujeme projekt rodinného domu s 3 bytovými jednotkami

Předpokládané zahájení výstavby 06/ 2026

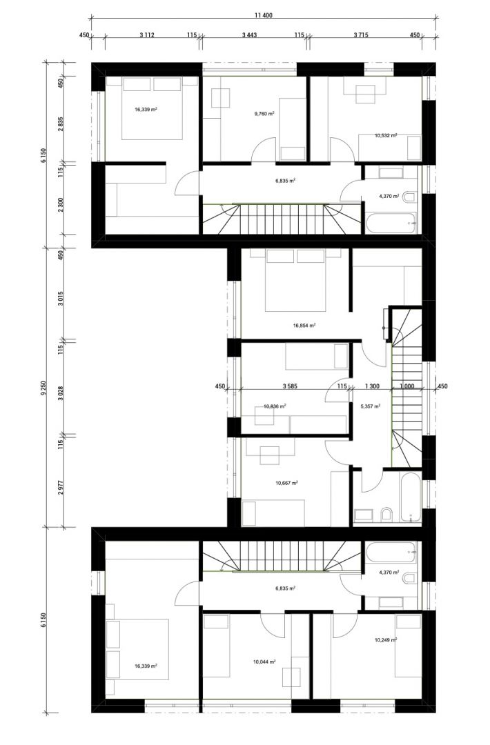
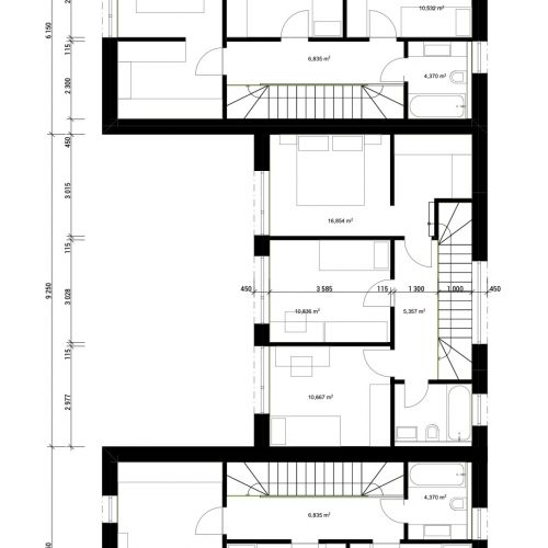
Dispoziční řešení bytů je 4+KK, Umístění na pozemku je řešeno tak, aby každá bytová jednotka měla zahrádku s maximláním soukromím a valstním přístupem. Orientace zahrad je jižní. 

Typ domu: rodinný dům s třemi bytovými jednotkami
Tento web používá k poskytování služeb, personalizaci reklam a analýze návštěvnosti soubory cookie. Používáním tohoto webu s tím souhlasíte. Další informace